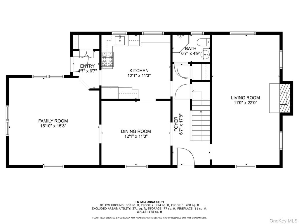
Welcome Home to 35 Carlton Street, located in the very desirable and sought-after Westwood section of the Village of Malverne! This well-maintained and updated home features 3 Bedrooms and 2 Full Baths, a gracious Living Room featuring a wood-burning fireplace, a Dining Room opening to the updated Eat-in-Kitchen, with GE Cafe Stainless appliances and a Miele Dishwasher, as well as the newly-added, spacious Den/Family Room, complete with its own built-in sound and entertainment system to bring much cheer and festivity to family and friends alike! This room may also offer the possibility of a First Floor Bedroom. As they say in real-estate, "Location, Location, Location," and this property offers just that! The Residence is situated a mere block away from a small, tree-lined Village park and children's playground, and 2 blocks from the LIRR single-track, branch-line station. A Commuter's Dream Come True, whereby both Penn Station and Grand Central Station are a short 36 minute ride away! And, the Village center is just a quick 15 minute stroll away. The quiet and peaceful 60' x 100' corner lot is tastefully landscaped with full irrigation, featuring a lovely paving stone patio in the rear of the property as well as a covered porch in the front, perfect for relaxing and taking in the sights. The home also has a 1-Car Detached Garage, built in 2002, with a convenient, mounted storage shelving system, along with a 2-Car wide driveway, able to accommodate up to 4 vehicles. In addition, the sidewalks were newly redone, ensuring strong curb appeal and ease of use. The whole house has a water filtration system, a Moen Flow smart water shut-off system, as well as central station monitored burglar and fire alarms. Simply stated, this home is turn-key, meticulous and offers SO MUCH! Must be seen!
910965
Residential - Single Family, Traditional
3
2 Full
1943
Nassau
0.14
Acres
Public Water, Private Water
Vinyl Siding
Public Sewer
Loading...
The scores below measure the walkability of the address, access to public transit of the area and the convenience of using a bike on a scale of 1-100
Walk Score
Transit Score
Bike Score
Loading...
Loading...

